Actions
Task #354
진행중상태:
진행
담당자:
시작일:
2024/07/08
완료기한:
2024/07/22 (약 16달 지연)
진척도:
80%
설명
파일
현호 강이(가) 일년 이상 전에 변경
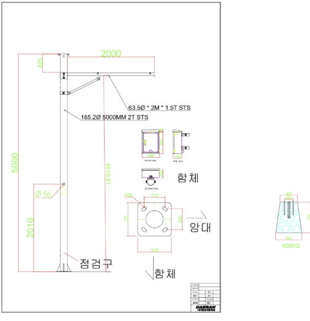
- 파일에 20240703 대륜정보통신 (폴대함체도면).dwg 20240703 대륜정보통신 (폴대함체도면).dwg이(가) 추가되었습니다.
- 상태을(를) 신규에서 진행(으)로 변경되었습니다.
- 진척도을(를) 0에서 20(으)로 변경되었습니다.
도면 검토, 제작 요청
현호 강이(가) 일년 이상 전에 변경
- 파일에 clipboard-202407081502-g3qgr.png clipboard-202407081502-g3qgr.png이(가) 추가되었습니다.

현호 강이(가) 일년 이상 전에 변경
- 파일에 clipboard-202407081502-zmuka.png clipboard-202407081502-zmuka.png이(가) 추가되었습니다.

현호 강이(가) 일년 이상 전에 변경
- 파일에 clipboard-202407081503-t0yb4.png clipboard-202407081503-t0yb4.png이(가) 추가되었습니다.

Actions